SISEVIIMISTLUSVÄRVIDE PROGRAMM
- Siseviimistlusvärvide koodid [uuendatud 12.04.26]
- MIRA dekoratiivpahtel:
- Nake: 4170 decor primer
- Pahtel: 6820 micro decor
- Lakk: 4720 decor topcoating
- Kasutusjuhend video: mira 6820 micro decor kasutusjuhend
- MHC põrandakate Villerock Canoa Carvalho 635x127x5
- Tooteleht
- Paigaldusjuhend
- Fassaadid arv 10
- Fassaadide galerii:










HOONESISESED TEHNOSÜSTEEMID
KÜTE
VESI JA KANAL Põhi- ega Tööprojekti ei koostata
- VK programm vastavalt märgruumide ja köögi paiknemise plaanidele:
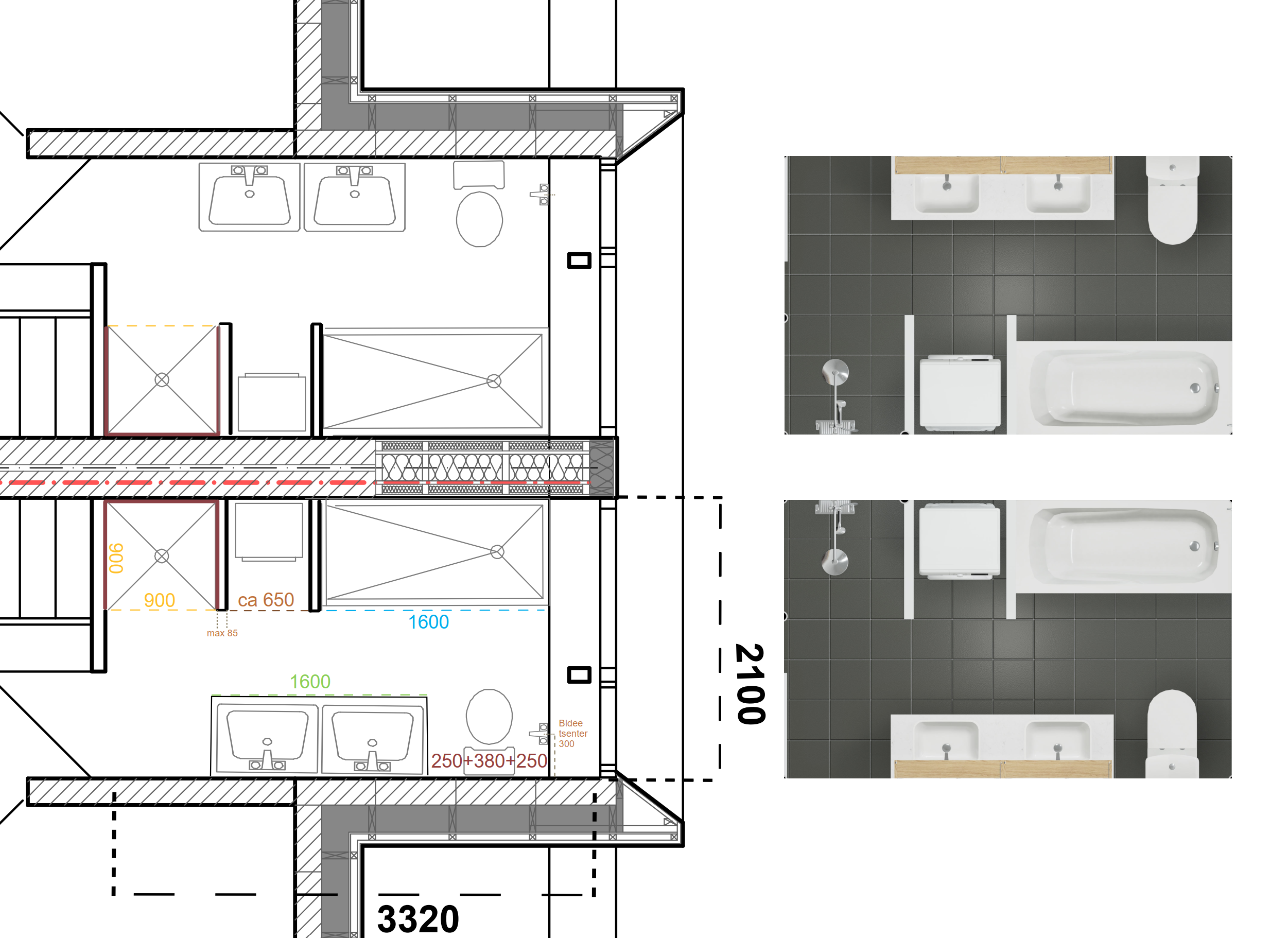
- Santehnika joonised:
- Bideesegisti
- Dushisegisti
- Vannisegisti
- WC pott
- Dushiuks (ainult 2.korruse vannitoad)
VENT
- Eelprojekti staadium seletuskiri
- Põhiprojekt koostatakse vahetult enne paigaldust
ELEKTER
- 1. Korrus elekter (versioon 1)
- 2. Korrus elekter (versioon 2)
- Harvia SW60 paigaldusjuhend (02.03.26 muudetud 4,5kW -> 6,0kW)
SOOJUSPUMP [Samsung EHS MONO R290 8kw]
- Kommud ja küttevesi
- Välisosa toitekaabel otse korteri kilbist: 5G2,5 (kaitse 1x C16 kolm faasi)
- Siseosa toitekaabel otse korteri kilbist: 5G2,5 (kaitse 1x C16 kolm faasi)
- Siseosa automaatika toitekaabel otse korteri kilbist: 3G1,5 (kaitse 1x C5 üks faas)
- Sise- ja välisosa vahel sidekaabel: LiYCY 2×0,75mm²
- Sise- ja välisosa vaheli kütteveetorud: 28mm PE-RT/AL/RT-PE, mis on kaetud vähemalt 19mm paksuse isolatsioonikihiga
- Välisosa taldmik, vahemaad ja otsad
- Betoontaldmik: 1200 x 800 mm (taldmikule kinnitatakse välisosa [998 x 500 mm] kandev must maaraam)
- Kaugus hoone müürist: min 300mm
- Toide, andmeside, ja küttevee ühendused kõik seadme tagant vaadates vasakul (hoone välisseina poolt seadme tagumist külge vaadates)
- Drenaaž on tagant vaadates tsentrist veidi paremal (hoone välisseina poolt seadme tagumist külge vaadates)




VÄLISVÕRGUD – VOOLUD
VÄLISVOOLU SKEEM (KÕRID JA VÄLISKAABLID SH NÕRKVOOL)
SIDE (TELIA)
- Kooskõlastatud optiline kaabel
- hoone proj. nv kilbist tuulekojas -> Telia posti Pargi 18A ees
- FYO2PMU Mini 4xSML G652D [86 meetrit]
- Tänavamaa ja Telia kaitsevööndi lõik lahendada Pargi 18A kõris (kirjalik kooskõlastus 18A omanikelt olemas)
- hoone proj. nv kilbist tuulekojas -> Telia posti Pargi 18A ees
FONO JA VÄRAV
- Fono:
- 2x Fonosüsteem: KIT-201S-372S – Uniview – Leader of AIoT Solution
- Välisosa toide ja komm läbi CAT6 kaabli, ühendusega POE swichi nõrkvoolu kilbis
- Siseosa toide ja komm läbi CAT6 kaabli, ühendusega POE swichi nõrkvoolu kilbis
- Välisosa – Kiirjuhend
- Välisosa – Datasheet
- Siseosa – Kiirjuhend
- Süsteem – Kasutusjuhend
- Süsteemi – Rakendusjuhend
- 2x Fonosüsteem: KIT-201S-372S – Uniview – Leader of AIoT Solution
- Värav:
- Tiibvärav peab võimaldama 3x signaal: 2x fonod, 1x väljapääsunupp
VÄLISVÕRGUD – VESI ja KANAL
VESI JA KANAL KINNISASJASISENE
VK Projekti DWG (kohaliku programmiga avamiseks vajuta “Download”)
PUMPLA
- Pumpla joonis (IWS ID700)
- Pumpla paigaldusjuhed (IWS väikepumplad)
- Pumpla Alarmseadme paigaldusjuhend (vajab ültarbijate kilbis eraldi 1A rikkevoolulülitit)
- Reoveepumpla paigaldus- ja opereerimisjuhend (KSB Ama-Porter500SE)
- Reoveepumba töögraafik (KSB Ama-Porter500SE)
ELAMU EHITUSPROJEKT
ÜLDOSA
03.06.25 Hoone esifassaadi muutev muudatusprojekt muutis:
- Sissekäigu varikatuse mõõtmed, sildamine ja kujundus
- Teise korruse üleulatuse lahendus ja sildamine
- Teise korruse fassaadikatte laudise lahendus (lisakihist vertikaalsetest prussidest loobutud)
- Muudatustega muutunud joonised tähistatud ” (Muudatus_03.06.25)”
VAATED
- Eest (VT1) (Muudatus_03.06.25)
- Tagant (VT3)
- Pargi 20A poolt (VT2)
- Pargi 18 poolt (VT4)
PLAANID
- Vundament (Muudatus_03.06.25)
- Esimese korruse plaan (Muudatus_03.06.25)
- Vahelagi (korrustevaheline)
- Teise korruse plaan (Muudatus_03.06.25)
- Vahelagi (katuslagi)
- Katuse plaan
LÕIKED
DWG-d ja o2c
- Ehitusprojekt DWG (kohaliku programmiga avamiseks vajuta “Download”)
- 03.06.25 muutuunud joonised toodud eraldi (ei kajastu ↑ EP DWG-s):
- Asendiplaan DWG (kohaliku programmiga avamiseks vajuta “Download”)
- 3D eskiis o2c (kohaliku programmiga avamiseks vajuta “Download”; väljavõtted all, videotena – ei kajasta 03.06.25 muudatusi)
AVATÄITED ja HOONEJAOTUSPLAAN

SÕLMED / JUHENDID
VUNDAMENDI HÜDROISO JA VIIMISTLUS
PAPRAPETTIDE TÕSTMINE (+200mm) MÕJU VÄLISILMELE



